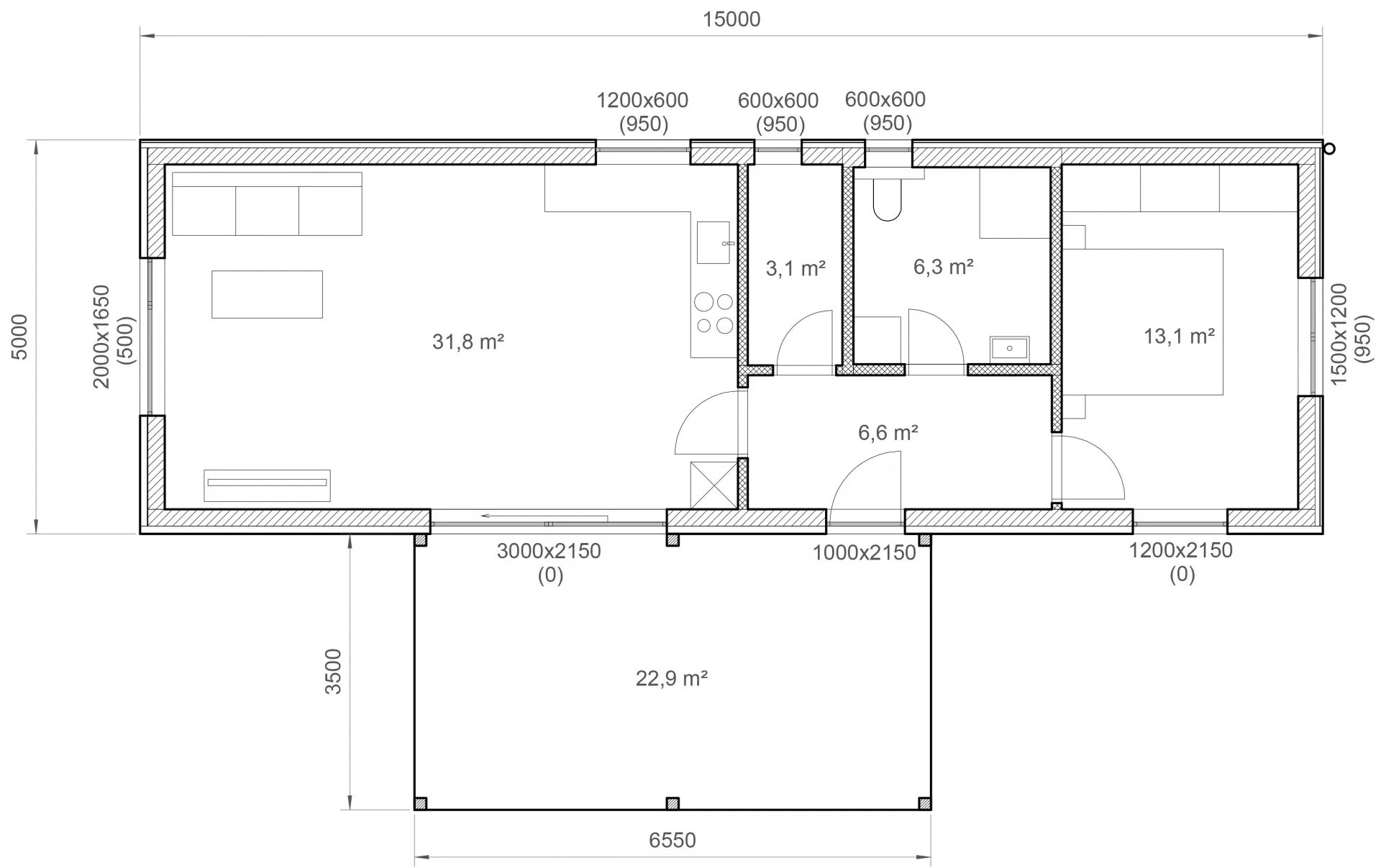
Skladový dům SINGLE WOOD 75² rovná střecha
Tento moderní dům o ploše 75 m² se nachází v Kácově u Prahy a je připraven k okamžitému bydlení po převozu na váš pozemek. Kombinuje rovnou střechu s přírodním dřevěným obkladem, což poskytuje příjemný a rustikální vzhled. S rozměry až 5 x 15 metrů nabízí tento prostorný modul dostatek místa pro komfortní bydlení. Terasa není součástí ceny domu.
Ceník modulu
Skladový dům SINGLE WOOD 75M² rovná střecha
Mám zájem
2 500 000 Kč Doprava: 60 000 Kč (pevná cena po celé ČR) Jeřáb pro osazení: 50 000 Kč (pevná cena) Zemní vruty: 110 000 Kč (pevná cena)
- Cena je bez DPH
- Snížená sazba DPH 12% – bude dle § 48a § 49 zákon č. 235/2004 Sb., o dani z přidané hodnoty uplatněna na rodinné domy určené k trvalému bydlení.
- Základní sazba DPH 21% – bude uplatněna v ostatních případech.
Co je součástí ceny domu?
Podívejte se, co je součástí ceny tohoto domu. Modulový dům skladem
s bohatou nabídkou
nadstandardního
vybavení – vše připraveno k okamžitému bydlení po převozu na váš pozemek.
Užijte si
komfort a moderní
technologie, které
jsou
již zahrnuty v ceně!
Nadstandardní vybavení
Mám zájemExteriér
- Dřevěný obklad thermowood po celém domě
- Hliníkový HS portál 3000 x 2150 mm
Interiér
- Vestavěné skříně
- Kuchyňská linka ve tvaru L vč. spotřebičů Gorenje
- Koupelna - keramické obklady 120x60
Standardní vybavení na klíč
Mám zájemHlavní výhody
- Hliníkové vstupní dveře
- Plastová okna s izolačním trojsklem
- Fermacell - cerifikovaný protipožární materiál (vnitřní stěny, podlaha, strop)
- Voděodolná překližka 15 mm ze spodní části domu
- Tepelné čerpadlo vzduch - vzduch s funkcí klimatizace
- Certifikovaný nehořlavý prostup pro krbová kamna s výztuhou pro komín
- Příprava na fotovoltaiku
- Bojler s tepelným čerpadlem Ariston Lydos
Další výhody
- Elektrický topný žebřík v koupelně
- Keramické obklady 30 x 60 cm (koupelna)
- Kompletní sanitární vybavení koupelny
- Podlahová krytina - laminátová 10 mm
- Interiérové dveře včetně zárubní
- Elektroinstalace včetně revize
- Instalace rozvodů vody a odpadu včetně tlakových zkoušek
- Výmalba interiéru - bílá
- Kompletní obvodové stěny, podlaha a strop
- Střešní krytina
- Keramická dlažba 120 x 60 cm (koupelna)
